涂布工艺中“风”的设计与调节
随着国内电子产业发展,越来越多的功能膜需求推动了国内涂布产业的增长,从涂布产品生产到涂布机的制造及各行各业的应用等都有了长足的发展。但遗憾的是,我们涂布产品的品质、性能还是无法与日、韩企业同日而语,除了基础配方体系的差距外,在涂布工艺中,我们还缺乏自己的理论体系和实验数据,从而没有办法系统、彻底地解决问题。
本文尝试从涂布工艺的一个分支——“风”的系统,进行系统梳理,并总结了一些经验,供业内人士参考。
一、涂布工艺生产中“风”的分类

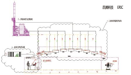
图1 涂布工艺示意图
涂布工艺涉及的风有三类:
1、净化室的风系统
①其作用主要是:
提供净化处理的空气,杜绝尘埃对功能膜的影响。
提供合适的温湿度,保证产品的外观性能要求。
②涂布净化室基本要求:温度:23±5℃,湿度:RH 50%~60%,重点:涂布头单元的湿度要求更高一些。
③如果净化室的温湿度过大波动,会引起如下问题:
温度过低:涂布液的流平性会不好,附着力会下降;
湿度过低:涂布膜面会发白,也会引起静电起火事故;
湿度过高:涂布后的膜面会起雾,有水珠,外观非常难看。
2、涂布机烘箱的风系统
涂布机烘箱的风系统,主要包括进风、排风两大体系。
进风一方面提供胶粘剂固化所需的热量,一方面提供合理的风速满足胶粘剂中溶剂的挥发,避免出现干燥缺陷。
排风主要是VOCs的合理挥发,同时促进空气流动,提高热效率。
3、废气处理系统
废气处理系统,目前主流方式是采用RTO。
根据国家《大气污染综合排放标准》GB-162-97规定VOCs的最高允许排放浓度为120mg/m2。此项指标与RTO设计中的废气停留分解时间是正比例关系,需要关注。
RTO的换热能力,与涂布产线、RTO的能源消耗有直接关系,设计、运行合理可以降低企业的产品成本。

